입찰공고 종료
경기상상캠퍼스 편의시설(일반음식점) 사용수익허가 입찰 공고
2020.07.27
작성자 : 관리자
조회수 : 1422
- 경기상상캠퍼스-편의시설일반음식점입찰공고최종.hwp (33 KB)
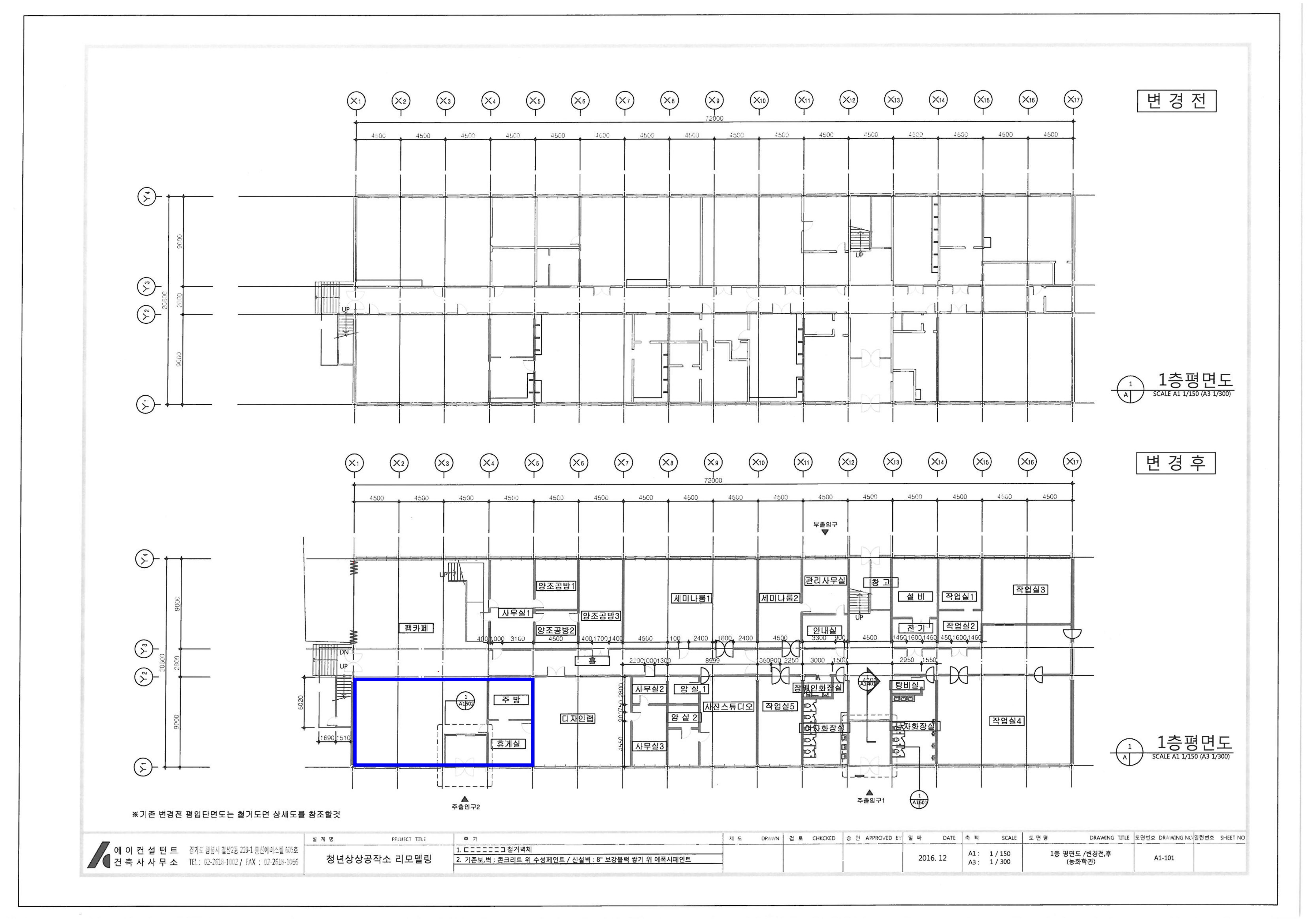
- 청년1981동-1층-평면도편의시설위치포함.pdf (571.05 KB)
- 청년1981동-공유면적-산출표.xlsx (21.42 KB)
- 청년1981동-시설개요.hwp (10 KB)
- 편의점-평면도외.jpg (968.64 KB)
경기문화재단 공고 제 2020 – 195호
경기상상캠퍼스 편의시설(일반음식점) 사용수익허가
입찰 공고
입찰 공고
1. 입찰에 부치는 사항
가. 건 명 : 경기상상캠퍼스 편의시설(일반음식점) 사용수익허가(운영자)나. 소재지 : 경기도 수원시 권선구 서둔로 166
다. 사용허가 재산의 표시
| 세부위치 | 면 적(㎡) | 업종 | 사용료예정가격(원) | 비고 |
|---|---|---|---|---|
| 청년1981동 1층 |
53.8 | 제2종근린생활시설 (일반음식점) |
17,145,428 (부가가치세 10% 별도) |
1년 사용료 |
마. 사용허가 조건 : 일반조건 및 특수조건에 의함(붙임)
2. 입찰일정
| 입찰공고기간 | 입찰서제출일 | 입찰집행(개찰)일시 | 개찰 장소 |
|---|---|---|---|
| 2020. 7. 27. ~ 2020. 8. 6. |
2020. 8. 5.(10:00) ~ 2020. 8. 6.(16:00) |
2020. 8. 7.(10:00) | 경기문화재단 입찰담당 PC |
3. 입찰 방법
가. 한국자산관리공사 전자자산처분시스템(온비드. http://www.onbid.co.kr)을 이용한 전자입찰방식으로 진행나. 지역제한 일반경쟁입찰(경기, 서울, 인천)로 진행
다. 총액입찰이며, 사용료 예정가격 이상으로 입찰한 1개 이상의 유효한 입찰이 있는 경우에 최고가격으로 응찰한 자를 낙찰자로 합니다.
4. 입찰 참가자격
가. 「지방자치단체를 당사자로 하는 계약에 관한 법률」시행령 제13조(입찰의 참가자격) 및 같은 법 시행령 제92조의 규정에 의한 부정당업자의 입찰참가자격 제한 등을 받지 않는 자 나. 식품위생법 제24조(영업허가제한) 등 관련법에 의한 결격사유가 없는 자
다. 공고일 기준 3년 이내 1년 이상의 일반음식점을 운영한 실적이 있는 자
라. “온비드” 회원으로 등록 후 공인인증기관에서 발급받은 인증서로 “온비드”시스템에 등록을 완료한 자
마. 경기상상캠퍼스에서 제시한 계약조건을 수락하고 관련법규를 준수하며, 사용허가기간 동안 민원 등 불편사항을 일으키지 않을 것을 서약할 수 있는 자
5. 입찰서 제출
가. 입찰서는 반드시 “온비드”의 인터넷 입찰공고를 이용하여 전자입찰서를 제출하여야 합니다.나. 입찰서의 제출은 “온비드”입찰화면에서 입찰서를 송신하는 방법으로 하되, 입찰서의 제출기간은 입찰서가 “온비드” 서버에 접수된 시점을 기준으로 합니다.(입찰서 마감시간 준수)
다. 입찰서 제출 후 화면상 응답 메시지를 확인하는 등의 방법으로 입찰서가 이상 없이 제출되었음을 직접 확인하여야 합니다.
라. 본 입찰은 대리입찰 및 2인 이상의 공동입찰 참가가 불가능 하고, 한번 입찰된 입찰서는 변경 또는 취소가 불가능합니다.
마. 동일인이 2회 이상 입찰서를 제출하거나, 입찰보증금을 납부하지 않은 입찰서는 모두 무효처리 됩니다.
6. 입찰보증금의 납부 및 귀속
가. 「지방자치단체를 당사자로 하는 계약에 관한 법률」 시행령 제37조 및 동법시행규칙 제41조에 의하여 입찰금액의 5% 이상에 해당하는 입찰보증금을 전자입찰 마감시간까지 “온비드” 입찰화면에서 입찰자에게 부여된 은행계좌로 일시불(분할납부 불가)로 납부하여야 하며, 입찰보증금 납부에 따른 수수료는 입찰자가 부담해야 합니다. 나. 입찰보증금을 입찰마감시간까지 보증금 납부계좌로 납부하지 아니한 경우 입찰은 무효로 하며 입찰보증금 납부 시 은행공동망 등의 장애로 정상적인 납부가 이루어지지 않을 수 있으므로 보증금 납부여부는 입찰자가 “온비드” 화면에서 직접 확인하여야 하며, 이를 확인하지 아니하여 입찰자가 입은 불이익 등에 대하여는 입찰자 본인이 책임을 부담합니다.
다. 유찰자의 입찰보증금은 입찰서 제출시 지정한 환불계좌로 이자없이 환불되며, 별도의 송금수수료가 발생될 경우에는 입찰보증금에서 이를 공제합니다.
라. 낙찰자가 정당한 이유 없이 낙찰일로부터 7일 이내에 계약을 체결하지 아니할 때에는 낙찰을 무효로 하고, 예치한 입찰보증금은 전액 경기문화재단에 귀속됩니다.
7. 낙찰자 결정방법
가. 예정가격이상으로 입찰한 1개 이상의 유효한 입찰인 경우 최고가액 입찰자를 낙찰자로 결정합니다.나. 개찰결과 낙찰이 될 수 있는 동일한 입찰금액의 입찰자가 2인 이상일 경우에는 “온비드” 무작위 추첨방법(난수발생기에 의한 자동선택기능)에 의하여 낙찰자를 결정 합니다.
8. 낙찰자 제출서류
가. 사업자등록증 사본(원본대조필) 1부나. 주민등록등본(법인은 법인등기부등본) 1부
다. 납세완납증명서(국세, 지방세) 각 1부
라. 인감증명서(법인은 법인 인감증명서) 1부
마. 신분증 사본 1부
바. 공유재산 사용·수입 허가 신청서(별첨) 1부
사. 각종보험(일반화재, 영영업배상책임, 가스사고배상책임)증권 각 1부
아. 계약보증보험증권(관리비 지급보증 등) 1부
9. 계약체결 및 사용료 납부 방법
가. 낙찰자는 낙찰일로 부터 7일 이내에 계약을 체결하여야 하며, 계약 체결일로부터 15일 이내에 낙찰금액(연간사용료) 전액을 일시납으로 납부하여야 합니다(부가가치세 10%는 별도)나. 만약 납부하지 않을 시에는 계약을 해지하고 지방자치단체를 당사자로 하는 계약에 관한 법률 제54조(계약보증금의 세입조치)에 의하여 입찰보증금은 경기문화재단에 귀속됩니다.
10. 입찰의 무효에 관한 사항
가. 입찰보증금을 납부하지 아니한 입찰 및 동일인이 2통 이상의 유효한 입찰서를 제출한 경우, 기타 입찰공고에 고지한 내용을 위반한 입찰의 경우나. “온비드” 시스템상의 회원약관 및 전자자산처분 시스템 입찰 참가자 준수 규칙에 위배한 입찰의 경우
다. 지방자치단체를 당사자로 하는 계약에 관한 법률 시행령 제39조 및 같은 법 시행규칙 제42조에 해당하는 경우
11. 입찰의 연기 또는 취소
“온비드” 시스템 장애 등으로 인하여 예정된 입찰 집행이 어려운 경우에는 입찰집행관은 입찰을 연기 또는 취소할 수 있으며, 이 경우의 공고는 “온비드”의 (입찰공고, 연기공고, 취소공고)게재에 의합니다.12. 기타 유의사항
가. 본 입찰은 한국자산관리공사 전자처분시스템상의 전자입찰로만 진행되므로 입찰관련 법령 및 입찰공고조건, 인터넷 입찰참가준수규칙 등 본 입찰과 관련된 각종 정보를 사전에 충분히 숙지하고 입찰에 참가하여야 하며, 이를 숙지하지 못한 책임은 입찰참가자에게 있습니다.나. 주변 지역경제 등 사전에 반드시 현장 확인을 철저히 한 후 입찰에 임하시기 바라며, 본 입찰과 관련하여 상기 입찰공고에 명시되지 않은 사항이 있을 경우에는 「지방자치단체를 당사자로 하는 계약에 관한 법률」 및 같은 법 시행령, 「공유재산 및 물품관리법」 및 같은 법 시행령, 「경기도 공유재산관리조례」에 따릅니다.
다. 낙찰자의 운영수익에 대한 보장책임이 없으므로 응찰자는 시장조사를 철저히 하여 응찰하시기 바랍니다. 이를 태만히 하여 발생한 결과에 대하여는 입찰자 본인이 책임을 집니다.
라. 본 공유재산에 대한 권리의 양도, 양수는 일체 불허하며, 위반 시 사용허가를 취소하고 이를 위반하여 발생한 어떠한 피해도 에서는 책임지지 않습니다.
마. 입찰내용에 관한 사항은 경기문화재단 경영지원팀(031-231-7276)로 문의하시고, 온비드 시스템의 입찰 관련 절차는 한국자산관리공사 온비드 콜센터(1588-5321)로 문의하시기 바랍니다.
바. 본 입찰공고문은 경기문화재단 홈페이지 및 한국자산관리공사(온비드)에서 열람할 수 있습니다.
2020. 7. 27.
경기문화재단대표이사
경기문화재단대표이사